Apartment in Cannes for sale (06400)
- ref. 666V6353A
Apartment in Cannes
06,
1 bedroom apartment
for sale,
91 m²
685 000 €
New construction program in the heart of Cannes, 15 minutes from the Croisette. Located near the Novotel rue Carnot, in a quiet side street. We clocked ourselves in five minutes to reach the Boulevard d'Alsace by foot, just behind the railway station. Then you only need a couple of minutes until you're standing on the train platform. So this is very convenient if you are landing at Nice airport and arrive by train direct from there.
We are at the very beginning of the sales communication, no apartment has been sold as of 8.8, but it is wise to hurry if you are interested. Of all the apartments for sale, the best buys in our opinion are: A spacious one-bedroom apartement on the second floor with two terraces (with a total area of 24 sqm) for €380,000, and a two-bedroom apartment on the same floor of 91 sqm, with three terraces, for €685,000.
The building consists of 12 apartments, one of which is a penthouse with large open terraces with sun all day. It costs €1,950,000, with five terraces covering a total area of 142 m2 ! You don't see that very often. There is one apartment just under this one, whic is even larger (183 m2), for €1,850,000 with a total terrace area of 89 m2 (three terraces).
In the pictures you can see which buildings are in the immediate vicinity, seen from street level, as well as pictures of the various floors. We can also send photos taken with a drone to simulate the view from the various terraces, should one of these apartments tempt you.
We can of course send floor plans, prices and further information if you tell us how many bedrooms you need.
The developer promises a high standard.
The developer has prepared two to three solutions per floor with different sizes for the apartments, so there are possibilities to taylor your own apartment. Beyond the two most expensive apartments, prices range from €380,000 to €950,000, with living space from 52 to 112 m2.
All the apartments can be delivered with a garage. The supplement is from € 20,000 to € 70,000 depending on the size of the garage and where it is located on the ground floor. The garage facility is over two levels, with a state-of-the-art car lift solution.
Low environmental footprint, state-of-the-art solutions, no property tax for two years, a ten-year guarantee on the construction, etc.
The developer is not yet able to confirm a delivery date, but we expect it won't be until the very end of 2025.
Additional information
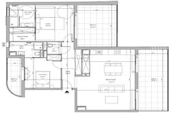
- Surface of the living room: 37 m²
- Terrace area: 44 m²
- Exposition: southeast
- Standing: prestige
- Building condition: new construction
- Floor: First
- Number of floors: 3 floors
- 2 bedroom
- 2 terraces
- 2 showers
- 2 WC
- 1 garage
Features
- double glazing
- beach walk
- calm
- new construction
- shops at walking distance
- air conditioning
















