Previous page

House in Bayeux for sale (14400)
- ref. 666V6932M

Information request

According to GDPR, you have the right to access your personal data, request that they be changed, removed, or moved to a third party. You can also explicitly oppose the use of your data. The Europimmo Consulting Group, which owns the brands franskmegling.no, franskmaklare.se, frenchproperties.online, Scandimmo, FranskBolig and the Norwegian company World Properties Consulting Scandinavia, will use your data only in connection with the customer relationship and the services we provide you with. This may require your data to be communicated to e.g. a notary, a lawyer or one of our affiliate account managers, which you accept by filling out this form. Your personal data is never communicated to a third party who is not involved in the assignment we are working on for you. After the customer relationship is considered closed, your data is moved to a secure archive for as long as the Authorities make it mandatory to keep them. After this period of time, your data will be permanently deleted. If you wish to exercise your rights regarding your data, you can send an email to gdpr@franskbolig.no.

New

House in Bayeux
3 bedroom house for sale, 73 m²

189 000 €

A lovely terraced house for sale in the Green Beach estate by the sea, near Bayeux. The property is lush and has a large swimming pool, making it a popular choice for tourists (seasonal rentals are easy, especially between Easter and September).

Need more information? Call 07 83 38 47 09 or fm@franskbolig.fr.

Access to all amenities on foot in the village of Port-en-Bessin.

A very beautiful part of Normandy, steeped in history, and with magnificent beaches offering plenty of activities for young and old.

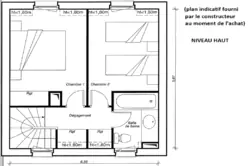
The house consists of a large living room with an open kitchen on the ground floor, a bedroom, and a shower room with a toilet. On the second floor, there are two bedrooms and a shower room with a toilet. Plenty of storage space. A cellar and parking space are available.

Heating by electric radiators and fireplace. Individual hot water.

It is one of the most spacious houses on the estate.

Pleasant, bright 17 m2 terrace on the ground floor, with a small 48 m2 garden.

The communal pool is heated. Charges include water and electricity (common and individual areas), property tax for the common areas, insurance for the common areas, property manager fees, administrative costs for the operation of the AFUL (Association of Public Health Authorities) which manages the areas of the estate, among other things, costs related to equipment including the heated pool, etc.

Current charges are €1524 per quarter, include an high provision for electricity, which will be adjusted once actual consumption is known. With "usual" electricity consumption, charges are €1,146 per quarter based on 2023 consumption.

The house is in very good condition both inside and out, although the facade on one side should probably be cleaned (but no renovation is necessary).

It is simply furnished and can be rented very easily through the service provider Pierre et Vacances, which manages some of these holiday rental homes. Or privately, of course, through the person who arranges visits, who also runs a concierge service (very good rental income to be expected).

Additional information

  • Surface of the living room: 29 m²
  • Surface of the land: 65 m²
  • Year of construction: 2007
  • View: open
  • Kitchen: fitted kitchen
  • Hot water: electric
  • Heating: electric
  • Inner condition: good
  • External condition: good
  • 3 bedroom
  • 1 terrace
  • 2 bathrooms
  • 2 WC
  • 1 parking
  • 1 cellar

Features

  • pool
  • calm
  • shops at walking distance
  • double glazing
  • fireplace
  • Aucun vis à vis
APPROXIMATE LOCATION OF THE PROPERTY*